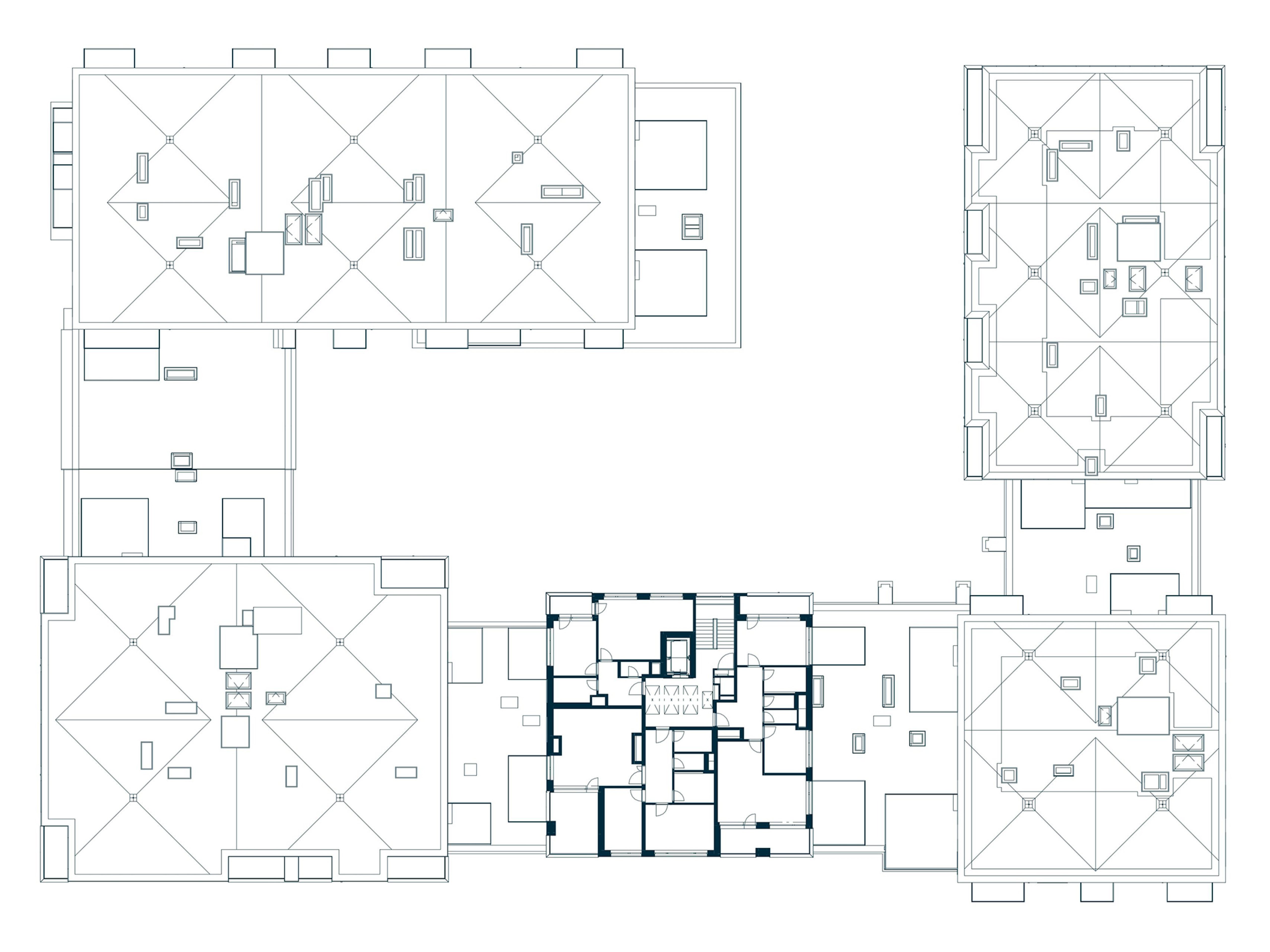
Rezidence Cubicum | 10. patro
Desáté podlaží
0/3 volných
Výběr jednotky
Vojenská nemocnice
Vyberte jednotku z plánu podlaží nalevo.Vyberte jednotku z plánu podlaží výše.
Nabídka jednotek
cubicum 10.NP

Poptávkový formulář
Máte zájem o koupi bytu v Nové Zbrojovce? Zanechte nám své kontaktní údaje a rádi se s Vámi potkáme.

